客户服务中心

您可以直接拨打我们的客户服务热线或者把您的意见发送至我们的邮箱

010-82684401

mingdedata@163.com

北京市昌平区宏福国际创新中心A座4030室

当前位置:企业新闻
建议收藏|部分文书档案案卷格式整理(GB/T 9705-2008)

文书档案案卷卷皮分两种,一种是硬卷皮,一种是软卷皮。

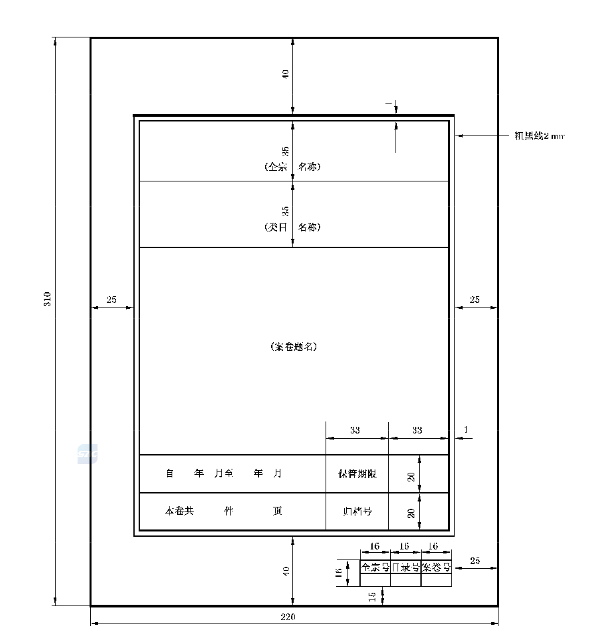
硬卷皮格式-硬卷皮外形尺寸:封面尺寸规格采用310 mm×220 mm。

1.png

封底尺寸同封面尺寸。

封底三边(上、下、翻口处)要另有70mm宽的折叠纸舌。

卷脊可根据需要分别设10 mm,15 mm,20 mm三种厚度。

用于成卷装订的卷皮,上、下侧装订处要各有20 mm宽的装订纸舌

本标准推荐使用250 g无酸牛皮纸制作案卷硬卷皮。

硬卷皮封面项目

封面项目包括:全宗名称、类目名称、案卷题名、时间、保管期限、件、页数、归档号、档号。

2.png

软卷皮格式:  使用软卷皮装订的案卷,必须装人卷盒内保存。

软卷皮外形尺寸:软卷皮设封皮和封底,其封皮和封底采用长宽为297 mmX210 mm的规

软卷皮封面项目:软卷皮封面项目及填写方法均同硬卷皮格式。封面项目尺寸

 

软卷皮封二项目:软卷皮封二项目包括:顺序号、文号、责任者、题名、日期、页号、备注。

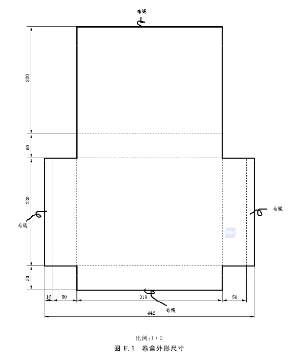
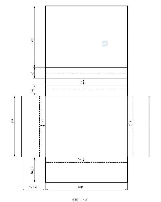
卷盒规格-卷盒外形尺寸:采用310 mmX220 mm(长X宽),其厚度可根据需要分别设置30 mm,40 mm 或50 mm卷盒封面为空白面。卷盒封面和卷脊格式卷盒封面为空白面。卷脊项目包括全宗名称、目录号、年度、起止卷号其中起止卷号填写X X-X X卷,其余项目的填写方法同硬卷皮格式

3.png

卷内文件目录格式-用纸幅面尺寸

采用国际标准A4型(即长宽为297 mmx210 mm)。4.2 页边与文字区尺寸卷内目录用纸上白边(天头)宽(20士0.5)mm卷内目录用纸下白边(地脚)宽(15士0.5)mm

卷内目录用纸左白边(订口)宽(25士05)mm

12.png